Rüsdorfer Kamp

Vorbereitenden Untersuchung mit Fortschreibung des integrierten städtebaulichen Entwicklungskonzeptes für das Gebiet Rüsdorfer Kamp im Förderprogramm „Stadtumbau West“
In Zusammenarbeit mit hpu – Dr. Holger Pump-Uhlmann
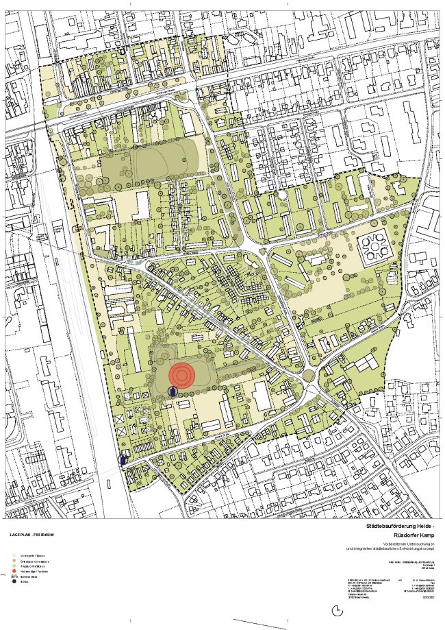
Das insgesamt ca. 32 ha große Untersuchungsgebiet „Rüsdorfer Kamp“ befindet sich in direkter Nähe zur Innenstadt von Heide. Aufgrund seiner Lage und guten Anbindungen hat das Quartier ein großes Entwicklungspotential. Trotz seiner Lagegunst wird das Quartier durch Barrieren wie die angrenzende Bahntrasse und die Hochstraße B 203 massiv beeinträchtigt.
Das Stadtquartier ist geprägt durch stillgelegte Bahnflächen und ungünstig genutzte Gewerbeflächen entlang der Bahngleise. Die Flächen des Rüsdorfer Kamp eröffnen jedoch die Möglichkeit einer städtebaulichen Neuordnung und der Schaffung eines innenstadtnahen Wohnquartiers mit hohem Grünanteil. Das Gebiet weist derzeit Defizite in der Gestaltung, der Bausubstanz und auch in der Nutzbarkeit auf, ist aber für die künftige Entwicklung der Stadt Heide von enormer Bedeutung.











