Wohnquartier München-Neuperlach

1 Quartier_3 Nachbarschaften
Neubau eines Wohnquartiers in München-Neuperlach
Zweiphasiger städtebaulicher und landschaftsplanerischer Planungswettbewerb
In Zusammenarbeit mit chora blau & energydesign Braunschweig
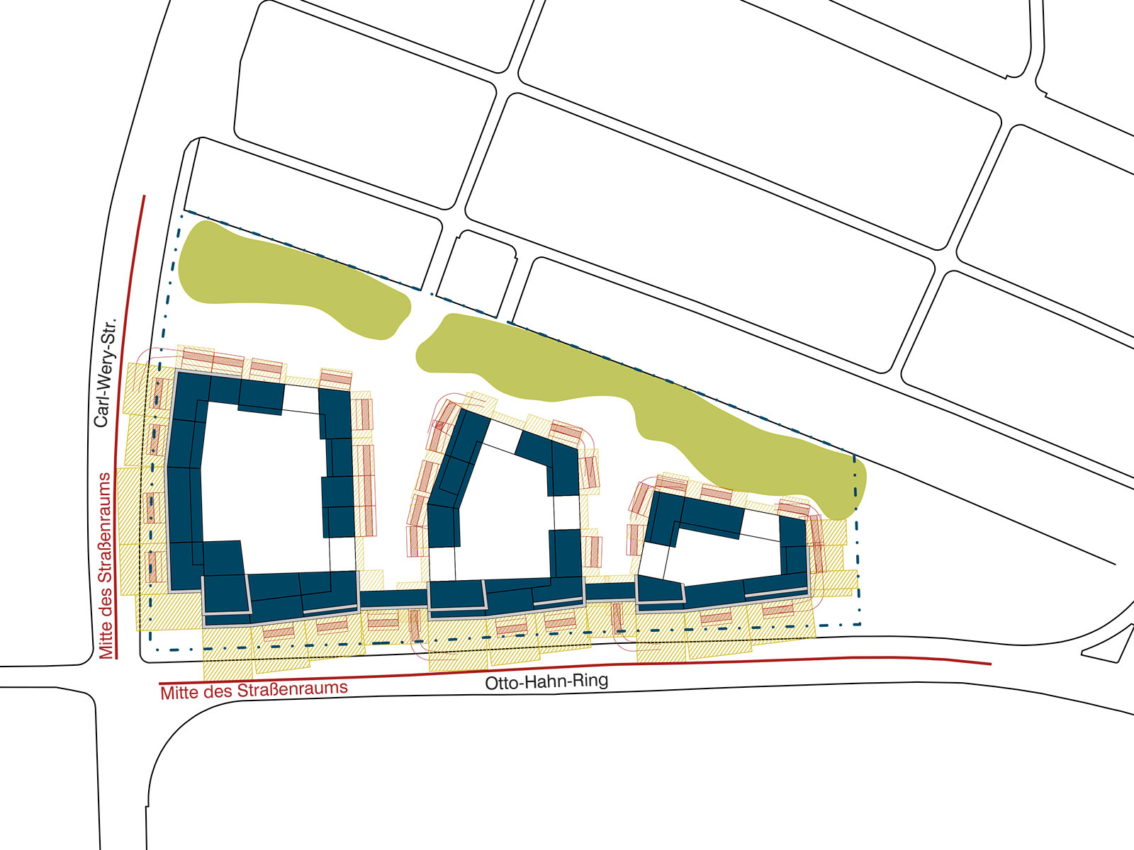
Städtebauliches Konzept
_In dem heterogenen Umfeld Neuperlach wird eine eindeutige und prägnante städtebauliche Struktur bereitgestellt, ein Quartier bestehend aus drei Nachbarschaften.
_Das Konzept bildet durch städtebauliche Ordnung mit klarer Figuration den Rahmen für vielfältige Gebäudetypen.
_In Teilen gemischt genutzte Gebäudekonstellationen erlauben wirtschaftliches, energieeffizientes, verkehrsreduziertes sowie flächensparendes Wohnen und Arbeiten.
_Angebot von Wohnraum für unterschiedliche Anforderungen, Einkommensschichten, Altersgruppen sowie Haushaltsgrößen, Wohnen und Arbeiten gemischt
Gliederung in drei Nachbarschaften
_Gliederung in drei Höfe (Baufelder), dadurch Herstellung von Überschaubarkeit und Kleinteiligkeit
_Überschaubarkeit unterstützt Sicherheit und Geschütztheit im Stadtquartier.
_Aufteilung in drei Nachbarschaften stärkt Identität.
_Klare Trennung von privaten Höfen und öffentlichem Freiraum
_Internes Wegenetz verbindet die Höfe untereinander.
Freiraumkonzept | Integration in die umgebenden Strukturen
_Reaktion auf nördlichen Freiraum und angrenzende Einfamilienhaussiedlung durch Schaffung von grünen Korridoren, die das zukünftige Quartier mit den bestehenden Wohngebieten verbindet.
_Integration in den umgebenden Stadtkontext durch klare Gesamtfiguration
_Partielle Öffnung der Höfe zum Freiraum, Reduzierung Gebäudehöhe und kleinteilige sowie heterogene Gebäudetypologie im nördlichen Bereich
_Dadurch Vermittlung und behutsamer Übergang zwischen dem großmaßstäblichen Bestand der Umgebung und der Einfamilienhaussiedlung im Norden
_Aufgrund des sehr heterogenen Umfeldes > Setzung deutlicher Raumkanten im Bereich Carl-Wery-Str. / Otto-Hahn-Ring
_Platzausbildung im Kreuzungsbereich Carl-Wery-Str. / Otto-Hahn-Ring als Quartier übergreifendes Angebot für den umgebenden Stadtkontext, Ärztehaus, Einzelhandel, Gastronomie und Dienstleistung
_Durchlässigkeit des Quartiers zum umgebenden Stadtkontext
Adressbildung
_Eigenständige Wirksamkeit als ein Quartier, drei Adressen, drei Nachbarschaften
_Positionierung architektonischer Prägnanz an der Carl-Wery-Str. und am Otto-Hahn-Ring
_Formulierung von Eingängen durch Akzentuierung, u.a. in Form von Hochpunkten




Privater Freiraum | Höfe und Dachgärten
_Der Freiraum innerhalb der Höfe ist introvertiert, privat und gemeinschaftlich genutzt.
_Vorgesehen sind unterschiedliche Nachbarschaftsgärten für die Hofgemeinschaft.
_Wohnungsbezogenes Angebot von Balkonen, Loggien, Terrassen und Dachgärten
_Dachgarten Typ 1: Gründach mit extensiver Dachbegrünung
_Dachgarten Typ 2: Dachgarten mit intensiver / extensiver Dachbegrünung. Dieser Typ kann als Hausgemeinschaftsgarten oder wohnungsbezogener Privatgarten genutzt werden.
_Dachterrasse Typ 3: Dachterrasse mit privater oder gemeinschaftlicher Nutzung
Öffentlicher Freiraum
_Entwickelt wird ein hierarchisiertes und abgestuftes Grünraumsystem (öffentlich und privat), das eine hohe Aufenthaltsqualität durch differenzierte Freiräume anbietet.
_Der Zwischenraum zwischen den Höfen bildet ein zusammenhängendes Grünraumsystem mit öffentlichem, quartiersbezogenem Charakter aus.
_Der schützenswerte, nördliche Gehölzstreifen wirkt als grüner Rücken, zusammen mit grünen Korridoren wird ein großräumiger Freiraumverbund ausgebildet.
_Der Übergang Kasperlmühlstraße wird deutlich ausformuliert, so dass eine zusammenhängend nutzbare Grünfläche für Freizeit und Spiel sowie eine Anbindung zum nördlichen Siedlungsbereich entsteht.
_Gezielt gesetzte Baumreihen stellen eine Verbindung von unterschiedlichen Freiraumcharakteren her.

Nutzungskonzept
_Vorgeschlagen werden unterschiedliche Typen, die sich innerhalb einer randständigen Bebauung reihen lassen: Geschosswohnungsbau, unterschiedliche Wohnungstypen, Maisonettewohnungen sowie Stadthäuser in mehreren Variationen
_Angebot von unterschiedlichen Wohnformen für Singles, Paare, unterschiedliche Familienkonstellationen, Haushaltsgrößen, Wohngruppen, Baugruppen, Mehrgenerationenwohnen und für weitere Lebensstile
_Integration von sozialer Infrastruktur, drei Kitas, eine in jeweils einer Nachbarschaft
_Positionierung des Nachbarschaftszentrums im wichtigsten, zentralen Freiraum
_Mischung von Versorgung, Dienstleistung und Arbeiten, diese Nutzungen sind vorwiegend im Erdgeschoss vorgesehen. Die Zone des Erdgeschosses belebt den öffentlichen Straßenraum, stellt einen aktivierenden Bezug her.
_Ärztezentrum, Versorgung und Gastronomie konzentrieren sich im Platzbereich.








